
291 Kitchen Location makes it onto the front page of the Saturday Times, after hosting a shoot for Tesco Finest, fronted by the gorgeous Catherine Tyldesley.


Welcome to my fabulous Kitchen Location, designed and built to be an ideal area for both filming and photo shoots. I hope the photos and 360 degree video clip on this site give you a good feel for the space, but of course nothing beats a good recce to see for yourself!
We’re located a few doors down from Kingston gate, on the borders of the beautiful Richmond Park, close to Norbiton and Kingston mainline stations, which are only 25mins from Waterloo. Just across the park is the pretty town of Richmond Upon Thames and the tube into central London. We’re also conveniently close to Heathrow airport, but not directly under the flight path, so sound isn’t a problem.
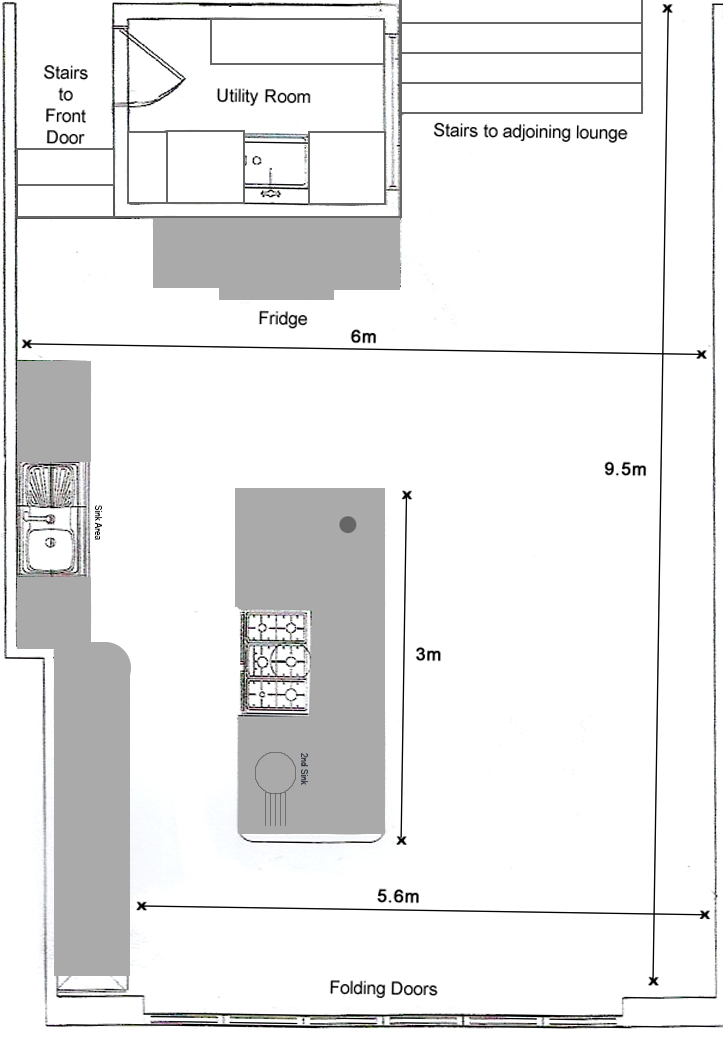
The total area of the kitchen is approximately 60sqm, bordered on one side by a bank of grey kitchen units, in front of which is a 3.3m long, dark grey polished concrete island with range cooker/hob set in the middle, ideal for filming presenters whilst cooking and talking to camera, and with lots of prep space. The space is filled with natural light from 4 velux roof lights set into the ceiling, and of course the wow factor folding doors at the end with large pitched glass windows on top – too much light, no worries, all the velux have blackout blinds fitted, the apex have two blackout panels and the folding doors have roller blinds, so that the whole end folding door and window area can be adjusted to suit your lighting requirements (see gallery photos).
There are two doors into the kitchen, one of which connects to our very spacious lounge area, which is generally included in the kitchen hire, it can be used as a supplementary prep area, production office, storage facility, Green room, whatever area!
For all your equipment requirements or additional/last minute items, NEW DAY PICTURES film services hire company on 0208 549 9966 are a 5 minute drive away and can also deliver.
Parking on our road is now CPZ and requires vouchers at £3 per vehicle a day, but generally it’s far easier for everyone to park for free in the car park just inside Kingston gate, a very pleasant 5 minute walk away – having said that, I’m happy to accommodate the unit vehicles carrying equipment with vouchers. For larger productions, Kingston council have in the past, made provision for film units to park in the road and car park – one production company managed to get the whole road closed for a week when filming for the movie ‘Criminal’.
In the surrounding area, we are a short drive/walk away from Kingston town center, and conveniently close to 3 large supermarkets, a couple of great gastro pubs/restaurants, plus cafes and deli’s.
If you wish to discuss anything else about the location, or book a recce, please don’t hesitate to get in contact!

Professor Tim Spector interviewed by Angelica Bell for ITV’s Tonight series ‘The War on Fat’ and promoting his new book ‘Spoon Fed’.


Waitrose & Partners, filming with Silvana Franco, for YouTube online recipe collection..


Kitchen Location hosted a celebrity dinner raising awareness for BLOODWISE Cancer charity, and in support of fellow presenter Simon Thomas on his 30 x day challenge.


Kitchen Location hosted 3 weeks of production for the fabulous BOSH! boys, Henry & Ian, filming their new vegan tv series for ITV, broadcast in January 2020.

Michelin starred chef Michel Roux Jr, Brand Ambassador for Albert Bartlett, the UK’s leading supplier of fresh potatoes, cooking at Kitchen Location.
![]()
Joe Wicks filming at Kitchen Location in collaboration with ‘Meyer’ - launching his own cookware range.


JustEat partnered with award winning pizzeria Joe & ‘Za in Hoxton, and came in to create a number of pizza ‘love heart’ messages for Valentine’s Day!

Bake Off's Selasi in the kitchen and the garden for Sainsbury's.

![]()
'Taste of the Nation' Top 10 favourite dishes on BBC2 in March 2015.


Tess Ward - Le Cordon Bleu trained chef, food writer, food consultant, & author of ‘The Naked Diet’.


Photoshoot for EVERDINE, suppliers of cooked and frozen gourmet meals, courier delivered.

Adjacent to the kitchen we have a large, sparsely furnished lounge. This can be used as a prep and storage area or be used as an additional location room.

Michelin Chef Theo Randall, teamed up with Eurotunnel to create ‘The Europhiles Cookbook’ in celebration of 25yrs of ‘Le Shuttle’.


ITV filmed a dramatic scene from Zoe Ball’s Book Club choice ‘Killer Intent’, complete with smoke bombs and breaking glass!.



Attilus took over the kitchen to produce some luxurious caviar recipes.
![]()
Its not just about food: Siemens UK came to film some child friendly experiments for The Curiosity Project, a UK wide engagement programme, aimed at inspiring young people & bringing science, tech, engineering & maths (STEM) to life. Yes she did walk on those eggs!


First of the videos for Waitrose TV - Eric Lanlard
Beautiful cake by John Whaite for Waitrose TV

Russell Bateman Head Chef at Colette's, baking for Homepride's website.

![]()
Chef Andy Bates was in the kitchen recently for Le Creuset's new in house brand magazine.
